Den Grundriss gestalten lassen vom Experten mit der Erfahrung aus vielen Jahren
Der GrundrissProfi agiert schon sehr lange
als Grundriss-Anbieter und was so lange währt, muss dann ja beherrscht werden. Probieren Sie es nicht lange selbst, sondern vertrauen Sie es dem an, der sich darauf spezialisiert hat und auf dem Gebiet seit Langem die Makler glücklich macht. Schauen Sie sich am besten zunächst mal
die Grundriss-Beispiele in unserem Angebot an, überlegen Sie sich unter anderem, welche Stilformen gut zu Ihrem Auftritt passen und dann können wir in Ruhe das weitere Vorgehen besprechen.
Verleihen Sie Ihrem Immobilien-Gewerbe Auftrieb, indem Sie
die Grundrisse schöner machen lassen, bevor Sie diese für jedermann von der Straße sichtbar aushängen.
Grundriss erstellen leicht gemacht mit unserem Grundriss-Service.
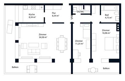
Ein ansprechender und klar gestalteter Grundriss ist ein entscheidender Faktor im Immobilien-Marketing. Doch oft liegen Grundrisse in unzureichender Qualität vor, die potenzielle Käufer oder Mieter eher abschrecken, statt Interesse zu wecken. Wir helfen Ihnen, den Grundriss professionell zu gestalten und ihn optimal für Ihre Marketingziele einzusetzen.
Warum ist die Gestaltung von Grundrissen so wichtig?Ein übersichtlicher, modern gestalteter Grundriss vermittelt auf den ersten Blick die räumlichen Gegebenheiten einer Immobilie. Professionell überarbeitete Grundrisse steigern die Attraktivität Ihrer Exposés und helfen Interessenten, sich die Räume besser vorzustellen. Besonders im digitalen Immobilienmarkt, wo Entscheidungen oft innerhalb von Sekunden getroffen werden, kann eine hochwertige Grundriss-Gestaltung den entscheidenden Unterschied machen. Jedes Leben hat sein Maß an Leid. Manchmal bewirkt eben dieses unser Erwachen.
Unser Angebot: Grundriss-Gestaltung nach Maß Wir bieten Ihnen umfassende Lösungen für die Gestaltung Ihrer Grundrisse. Egal, ob Sie bestehende Skizzen verbessern oder komplett neue Layouts erstellen möchten – unser Team setzt auf modernste Tools und ein geschultes Auge für Details. Dabei achten wir darauf, dass Ihre Grundrisse sowohl optisch ansprechend als auch funktional sind.
Ihre Vorteile auf einen Blick: - Hochwertige Visualisierung: Klar strukturierte und moderne Pläne.
- Individuelle Anpassungen: Wir gestalten den Grundriss genau nach Ihren Anforderungen.
- Professioneller Eindruck: Steigern Sie die Wahrnehmung Ihrer Immobilie.
Grundriss Gestaltung vom Experten
Belassen Sie
die Architekten Pläne nicht mehr in der Ursprungsform, wenn Sie sie
für Ihre Immobilien Werbung einsetzen.
Grundriss erstellen macht dann Sinn, wenn die nötige Erfahrung gegeben ist.
Der Grundriss Profi Grundriss Anbieter mit vielen Jahren praktischer Erfahrung kann Ihnen da weiterhelfen
mit seinen vielseitigen Grundriss Dienstleistungen, wenn es darum geht,
den Grundriss digital zu bekommen. Auf Wunsch setzen wir Ihnen auch
den Nordpfeil an den Grundriss Rand. Sollten Sie weitere Wünsche haben, wo Sie nicht genau wissen, ob sie sich erfüllen lassen, kontaktieren Sie uns gerne. Wenn Sie bereits
einen Grundriss zum Bearbeiten haben, mit dem Sie im Vorfeld noch etwas mit uns besprechen möchten, können Sie uns diesen am besten kurz vor Ihrem Anruf als Attachment per E-Mail durchsenden. Wir klären gerne alle Ihre offenen Fragen rund um die Grundriss Gestaltung.

Der Profi macht das für Sie:
ίχνος γράφω Finden Sie bei uns stets
aktuelle Neuigkeiten aus der Immobilienbranche.