Grundriss online auffrisieren lassen

Lassen Sie den Grundriss online auffrisieren.

Grundriss online bearbeiten lassen

Sie sind in der Immobilien-Branche aktiv, bekommen immer wieder schwache Grundrisse zu Ihren Verkaufsobjekten rein und suchen nach einem Standard-Angebot zum Verschönern vom Grundriss online?

Willkommen beim GrundrissProfi, bei dem Sie Ihren Grundriss online auf einen herzeigbaren Stand bringen lassen können.

Online Grundriss

Da hat der GrundrissProfi einige Leistungen im Bereich Immobilien-Marketing für Sie parat.
grundriss online in 3d grundriss online in 3d
grundriss online in 2d grundriss online in 2d
grundriss online simplex grundriss online simplex
Der GrundrissProfi - seit 1998 auf dem Markt - bietet eine breite Palette an Online-Dienstleistungen im Bereich der Grundriss-Gestaltung über unser Bestellformular wie auch 3D-Visualisierung mit Liebe für das Detail.

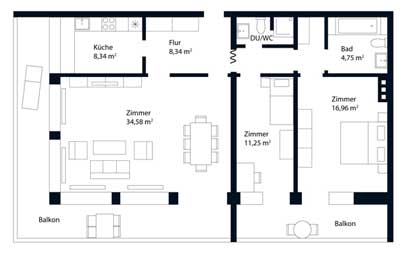
Sehen Sie hier, wie sich Original-Pläne durch die Online-Bearbeitung vom GrundrissProfi verändern:

(Klicken Sie auf die Thumbnails für die detaillierte Großansicht.)

Box wird geladen...
Box wird geladen...
Box wird geladen...
Box wird geladen...
Box wird geladen...

(Klicken Sie auf die Thumbnails für die detaillierte Großansicht.)


Wie bestellt man nun beim GrundrissProfi?

Registrieren Sie sich für den Kundenbereich, loggen Sie sich ein und bestellen Sie dort die Leistungen Ihrer Wahl online, wobei Sie mit der Bestellung bestimmen können, in welchem Design Ihr Grundriss vom GrundrissProfi aufgepeppt werden soll.

Alternativ senden Sie als Erstkunde dem GrundrissProfi Ihren Plan vom Haus per Mail für eine kurze Beratung zu und nach kurzer Vorbesprechung wird er ihn - je nach Ihren Wünschen - beispielsweise als fotorealistisches 3D-Rendering für Sie anfertigen. Sie bestellen und empfangen alles online.

Was hat der GrundrissProfi sonst noch an Ausarbeitungsformen von Immobilien-Plänen im Angebot?

Derzeit bieten wir die Anfertigung folgender Plan-Typen auf Basis der Original-Vorlage:
Was empfiehlt der GrundrissProfi, wenn Sie Grundrisse in schwacher Qualität vorliegen haben und nun die professionelle Neuerstellung online bestellen möchten?

Registrieren Sie sich online beim GrundrissProfi, geben Sie Ihre Bestellungen im Kundenbereich auf und erhalten Sie den aufgebrezelten Grundriss online im Kundenbereich.

Setzen Sie auf hohe Qualität und bestellen Sie die Dienstleistungen auf Basis vom Original-Grundriss online beim GrundrissProfi. Schnell, professionell und preiswert.

Aus alt wird neu. Aus krakeligen Original-Plänen in schwarz-weiß dekorieren wir einen Augenschmaus zusammen. Wir können ihn dabei in 2D und/oder auch in 3D für Sie herausstaffieren, je nach Vorliebe. Lassen Sie Ihren Grundriss online auffrisieren!

Sie möchten mehr erfahren oder möchten noch was für Ihre Bestellung abklären?

Wir freuen uns auf Ihre Anfrage. Wir antworten auf schriftliche Anfragen per E-Mail bzw. Kontaktformular werktags in aller Regel innerhalb weniger Stunden.


Bei uns bekommen Sie den Grundriss online

Sie liefern uns Ihren Grundriss und bald schon können Sie nach unserer Grundriss-Überarbeitung den fertigen Grundriss online herunterladen. Durch das fachgerechte Aufhübschen vom Grundriss verleihen Sie ihm magische Anziehungskräfte und gerne erstellen wir Ihnen auch quasi ein 3D-Grundriss-Foto wie beispielsweise eine 3D-Außenvisualisierung von einer Immobilie, eine 3D-Innenvisualisierung von einer Immobilie, ein Rendering von der Immobilie in 3D von schräg oben, einen 3D-Lageplan von einer Immobilie mit Nachbargrundstücken oder auch einen 3D-Rundgang durch eine Immobilie. All das können Sie unter Bereitstellung vom Grundriss online bei uns bestellen und ebenso von uns bekommen. Warten Sie nicht länger und lassen Sie das Marketing zu Ihren Immobilien-Angeboten optimieren. Wer den Grundriss schöner machen lässt, ehe er ihn als Immobilien-Präsentations-Material im Schaufenster vom Makler-Büro aushängt, der kann damit rechnen, dass er potentielle Hauskauf-Interessenten damit auch erreicht. Glück ist kein Geschenk der Götter, sondern die Frucht innerer Einstellung. Helfen Sie Ihrem Makler-Glück auf die Sprünge mit unserem Grundriss-Service zugunsten steigender Qualität. Der moderne Mensch und seine Grundrisse sind online, denn das Internet hat so Manches revolutioniert. Grundriss online Finden Sie bei uns stets aktuelle Neuigkeiten aus der Immobilienbranche.


Zögern Sie nicht lang und lassen Sie den GrundrissProfi Ihren Grundriss so gestalten, dass er sich für Marketing-Zwecke eignet. Vom GrundrissProfi können Sie Ihren Grundriss sowohl als 2D-Grundriss in der Qualitätsstufe Ihrer Wahl als auch als 3D-Grundriss aus der Perspektive Ihrer Wahl online aufpeppen lassen.

Grundriss online

Sie geben uns den Plan in schwacher Qualität online rein und wir liefern ihn professionell gezeichnet online zurück. Auf Wunsch integrieren wir z.B. auch Maßkette und Flächenangaben in den Grundriss.

GrundrissProfi
Wenn es darum geht, den Grundriss online aufpeppen zu lassen
JavaScript-Problem


Bitte aktivieren Sie JavaScript in Ihrem Browser, um den Online-Dienst von GrundrissProfi.de nutzen zu können und laden Sie die Seite erneut.


Seite neu laden
Bezahlarten
  • Rechnung
  • SEPA-Lastschrift
  • PayPal-Checkout
    • PayPal
    • Kreditkarte
Immobilien-News
3d grundriss vorschau grundriss premium vorschau grundriss executive vorschau grundriss solid vorschau grundriss solid simplex vorschau 3d ansichten vorschau immobilie 3d schraegansicht vorschau 3d innenansichten vorschau 360° Panorama als Rundgang vorschau 3d animationen vorschau 3d lageplan vorschau 2d ansichten vorschau 2d lageplan vorschau immobilien schnitte vorschau immobilien cad vorschau